

Tank bottom ball valve with chain drive and pneumatic actuation
Filling of special lubricants.
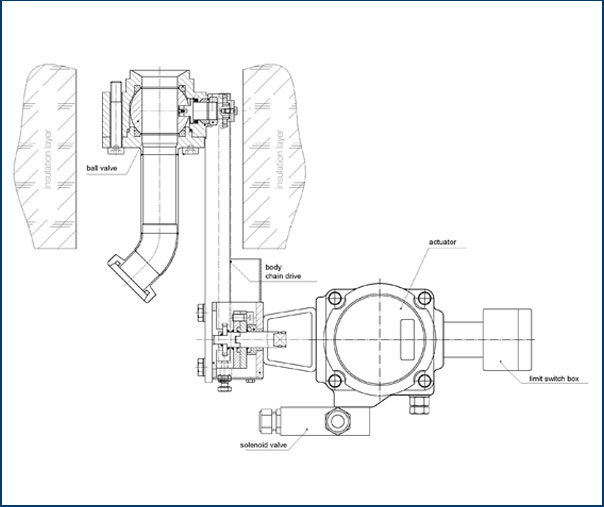
In the process of filling special lubricants at an insulated tank, the tank bottom ball valve type INTEC K500-S-STD with single-acting and spring-return pneumatic actuator, 3/2-way solenoid valve and limit switch box, in nominal size DN40 and pressure rating PN10, made of material 1.4571, is used.
This is a floating design with ball seats made of KFGN (KLINGER Flon Glass-fiber Nitrogen sintered). The tank connection is according to DIN 28117 and the pipeline connection is equipped with a laterally curved outlet and a so-called milk pipe fitting.
Due to the confined space under the tank as a result of a high insulation thickness, the actuator was relocated to the outside by means of an adjustable chain drive.

Tank bottom ball valve INTEC K500-S-STD DN40 PN10 made of 1.4571
with chain drive, single-acting and spring-return pneumatic actuator,
3/2-way solenoid valve and limit switch box.

Your contact
- Marcel Gossmann, Business Development Manager / Management Assistent
+49 6126 950 - 268 marcel.gossmann@klinger-schoeneberg.de